Subscribe to be notified about products, launches, special offers and news.
Select the account type that best suits your needs.
Contractors
Trade Professionals
Large Corporate
General Business
Military / Government
Institutional
Hospitals
Behavioral Health
K-12 Higher Learning
GSA Contract
Already have an account? Sign in
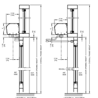
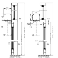
Nabco GT710 Low Energy ADA Operator comes in Clear Aluminum or Dark Bronze painted finish and has options for single door or pair door use. The Nabco GT710 is designed to automate nearly any new or existing door. The GT710 operates in both automatic and manual modes with a hydraulic back-check that protects the door and mechanical operator from damage when forced open in windy conditions or when manually operated. The Low Energy performance, combined with adjustable opening and closing speeds, reduces energy usage to help offer a prompt return on your investment.
The Nabco GT710 is approved for use on fire door assemblies rated up to 3 hours and is engineered for interior and exterior use.



